Trilocale in vendita

Brescello, Via Giuseppe Mazzini - Lentigione
€ 154.000
3 locali 3 locali
104 Mq 104 Mq
1 bagno 1 bagno

Trilocale in vendita

Brescello, Via Giuseppe Mazzini - Lentigione

Descrizione annuncio

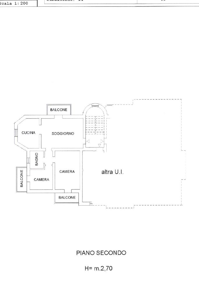
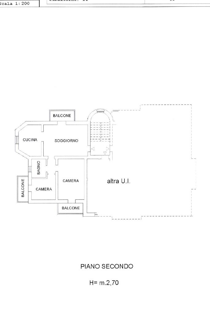
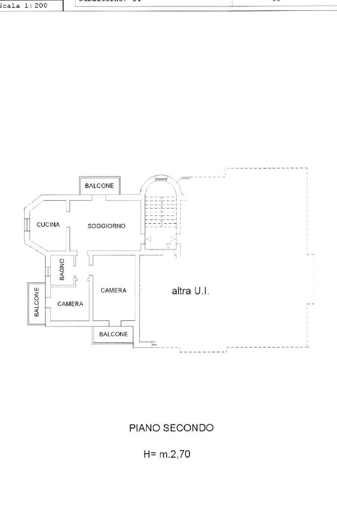
Nel cuore di Lentigione, proponiamo in vendita un appartamento con spazi comodi situato al secondo ed ultimo piano di una piccola palazzina del 2007.

L'appartamento è composto da:

-zona giorno con sala luminosa con accesso diretto a un balcone e cucina abitabile.

-zona notte con due camere da letto, entrambe con un balcone, perfette per una famiglia o per chi desidera uno spazio aggiuntivo per ospiti o studio, infine troviamo un bagno finestrato con box doccia.

La proprietà comprende anche un comodo garage, garantendo praticità e spazio aggiuntivo per le esigenze quotidiane.

All'interno della cifra la parte venditrice lascia la cucina.

L'appartamento è completo di doppi vetri, zanzariere e condizionatore.

Per maggiori informazioni chiama il: 333.8306454

Mostra tutto

Nelle vicinanze

Trasporto pubblico Trasporto pubblico
21 - Via XI Settembre
21 - Via XI Settembre
2,7 Km
Trasporto pubblico
2,7 Km
Lentigione
Lentigione
1,0 Km
Ricariche auto elettriche Ricariche auto elettriche
Sorbolo A Levante Pallini | EnelX
2,6 Km
Ristoranti Ristoranti
Il Bersò
1,2 Km
Ristoranti
2,6 Km
Mostra tutto

Caratteristiche

Rif.:
61119919
Piano:
2 di 2 (ultimo Piano)
Box:
1
Balconi:
3
Camere da letto:
2
Arredamento:
Parziale
Mostra tutto
Prezzo Prezzo
€ 154.000
Rata mutuo Rata mutuo
€ 683 / mese
Spese annue Spese annue
€ 600
Proponi il tuo prezzoProponi il tuo prezzo
Immobile valutato con TecnoValore

Classe Energetica

D
D
D
D
D
D
D
D
D
EP globale non rinnovabile:
220.00 kW h/m² anno
EP globale rinnovabile:
220.00 kW h/m² anno
EP invernale del fabbricato:
EP estiva del fabbricato:
Anno di costruzione:
2007
Riscaldamento:
Autonomo
Tipo impianto:
A radiatori
Tipo alimentazione:
Metano

Ti interessa visionare l'immobile?

Fissa un appuntamento  Fissa un appuntamento

Richiedi informazioni

* Questi campi sono obbligatori

Calcola il tuo mutuo

Semplice e senza impegno
Anticipo

( % )
Mutuo

( % )

pochi semplici passi

inserisci i tuoi dati
Questionario completato
Grazie per aver richiesto un appuntamento senza impegno con un nostro Consulente del Credito e Assicurativo.

Hai inserito correttamente tutti i dati necessari e a breve riceverai una e-mail con un link da convalidare per inviare i tuoi dati.
Affiliato
Cales Srl
Viale Martiri della Libertà , 20 43058 Sorbolo (PR)

Il nostro staff


  • Ida Cipro
    Affiliata

  • Giulia Carpi
    Coordinatrice

  • Martina Mortellaro
    Collaboratrice

  • Assunta Rita Petrosillo
    Collaboratrice
Viale Martiri della Libertà , 20 43058 Sorbolo (PR)
Zona: Sorbolo-Mezzani-Bogolese-Lentigione-Sorbolo a Leva
Mostra su mappa
Orari: DAL LUNEDI' AL VENERDI' 8.30/13.00 15.00/20.00 SABATO 8.30/16.30 ORARIO CONTINUATO
Affiliato
Cales Srl
Viale Martiri della Libertà , 20 43058 Sorbolo (PR)

2025 Tecnocasa Franchising S.p.A. - P. IVA 08365160152 - Via Monte Bianco 60/A 20089 Rozzano (MI). Ogni agenzia ha un proprio titolare ed è autonoma. Privacy policy | Policy utilizzo | Cookie policy