Trilocale in vendita

Brescello, Via Imperiale Superiore - Lentigione
€ 175.000
3 locali 3 locali
95 Mq 95 Mq
2 bagni 2 bagni

Trilocale in vendita

Brescello, Via Imperiale Superiore - Lentigione

Descrizione annuncio

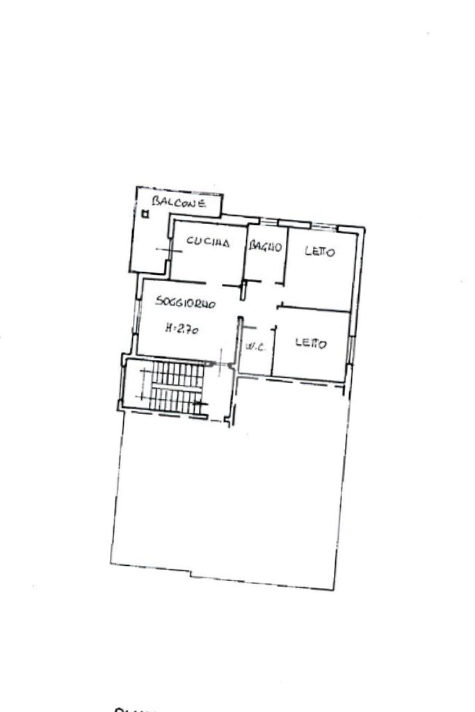
Nel cuore di Lentigione è disponibile un trilocale al piano ultimo di un edificio civile, costruito e ristrutturato nel 1996.

In piccola palazzina di sole 5 unità.

L'appartamento, di 95 mq, offre spazi ben distribuiti e funzionali.

La zona giorno si affaccia su un ampio salotto con accesso al balcone ideale per momenti di relax all'aperto e cucina.

La proprietà include due camere da letto e due bagni, garantendo comfort e privacy. Completano l'offerta due garage, perfetti per chi necessita di spazio aggiuntivo per veicoli o deposito, e una cantina.

Gli interni sono dotati di zanzariere e condizionatore, assicurando un ambiente confortevole in ogni stagione.

I doppi vetri contribuiscono all'isolamento termico e acustico, migliorando l'efficienza energetica dell'immobile.

Questa soluzione abitativa rappresenta un'opportunità interessante per chi cerca una residenza accogliente e ben accessoriata in una zona tranquilla.

Per informazioni 3405917649

Mostra tutto

Nelle vicinanze

Trasporto pubblico Trasporto pubblico
21 - Via XI Settembre
21 - Via XI Settembre
2,6 Km
21 - Via Martiri
21 - Via Martiri
2,7 Km
Lentigione
Lentigione
820 m
Ricariche auto elettriche Ricariche auto elettriche
Sorbolo A Levante Pallini | EnelX
2,4 Km
Scuole Scuole
Scuola elementare O. Boni
2,9 Km
Ristoranti Ristoranti
Il Bersò
1,5 Km
Ristoranti
2,4 Km
Mostra tutto

Caratteristiche

Rif.:
61189059
Piano:
2 di 2 (ultimo Piano)
Box:
2
Balconi:
1
Camere da letto:
2
Arredamento:
Parziale
Mostra tutto
Prezzo Prezzo
€ 175.000
Rata mutuo Rata mutuo
€ 831 / mese
Spese annue Spese annue
€ 600
Proponi il tuo prezzoProponi il tuo prezzo
Immobile valutato con T·Valuta

Classe Energetica

G
G
G
G
G
G
G
G
G
EP globale non rinnovabile:
220.00 kW h/m² anno
EP globale rinnovabile:
220.00 kW h/m² anno
EP invernale del fabbricato:
EP estiva del fabbricato:
Anno di costruzione:
1996
Riscaldamento:
Autonomo
Tipo impianto:
A radiatori
Tipo alimentazione:
GPL

Ti interessa visionare l'immobile?

Fissa un appuntamento  Fissa un appuntamento

Richiedi informazioni

Clicca su Leggi per aprire l'informativa
* Questi campi sono obbligatori

Calcola il tuo mutuo

Semplice e senza impegno
Anticipo

( % )
Mutuo

( % )

pochi semplici passi

inserisci i tuoi dati
Questionario completato
Grazie per aver richiesto un appuntamento senza impegno con un nostro Consulente del Credito e Assicurativo.

Hai inserito correttamente tutti i dati necessari e a breve riceverai una e-mail con un link da convalidare per inviare i tuoi dati.
Affiliato
Cales Srl
Viale Martiri della Libertà , 20 43058 Sorbolo (PR)

Il nostro staff


  • Ida Cipro
    Affiliata

  • Martina Mortellaro
    Collaboratrice

  • Assunta Rita Petrosillo
    Collaboratrice
Viale Martiri della Libertà , 20 43058 Sorbolo (PR)
Zona: Sorbolo-Mezzani-Bogolese-Lentigione-Sorbolo a Leva
Mostra su mappa
Orari: DAL LUNEDI' AL VENERDI' 8.30/13.00 15.00/20.00 SABATO 8.30/16.30 ORARIO CONTINUATO
Affiliato
Cales Srl
Viale Martiri della Libertà , 20 43058 Sorbolo (PR)

2026 Tecnocasa Franchising S.p.A. - P. IVA 08365160152 - Via Monte Bianco 60/A 20089 Rozzano (MI). Ogni agenzia ha un proprio titolare ed è autonoma. Privacy policy | Policy utilizzo | Cookie policy