Quadrilocale in vendita

Mezzani, Via Mazzabue - Casale
€ 135.000
4 locali 4 locali
80 Mq 80 Mq
2 bagni 2 bagni

Quadrilocale in vendita

Mezzani, Via Mazzabue - Casale

Descrizione annuncio

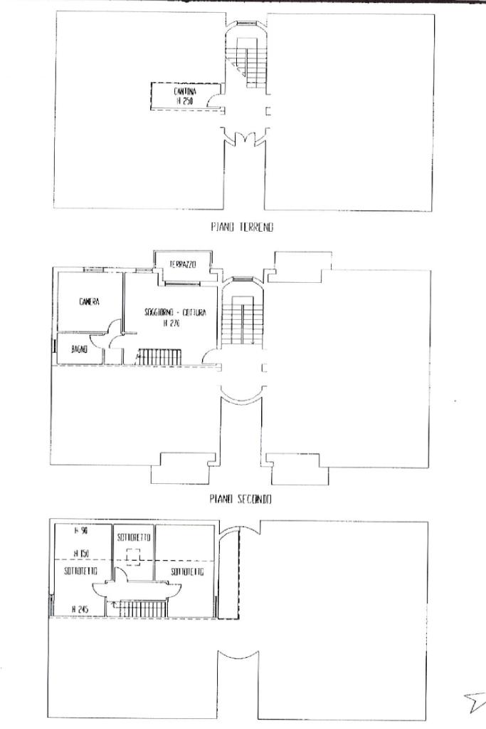
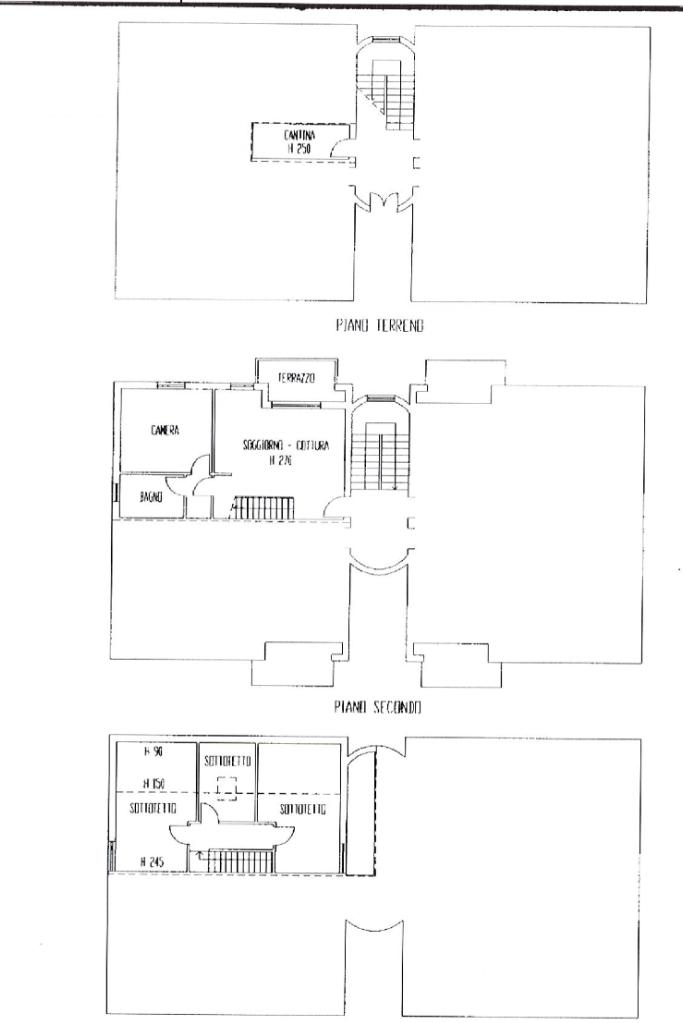
Nel tranquillo comune di Mezzani, nella località di Casale, proponiamo in vendita un appartamento situato al secondo ed ultimo piano di una piccola palazzina del 2004 con basse spese condominiali.

L'immobile è composto da: ingresso su un'ampia zona giorno luminosa con sala, cucina e accesso al terrazzino. Sullo stesso piano troviamo un disimpegno che collega la camera matrimoniale e un bagno finestrato e con box doccia.

L'immobile è costituito anche da un sottotetto composto da: due camere, una con accesso al balcone e un bagno di servizio.

Come parte accessoria troviamo una spaziosa cantina.

La parte venditrice all'interno lascia parte dell'arredo.

La posizione dell'appartamento garantisce tranquillità, perfetto per chi desidera vivere in un contesto residenziale sereno, senza rinunciare alla comodità.

PER MAGGIORI INFORMAZIONI CHIAMA IL: 333.8306454

Mostra tutto

Nelle vicinanze

Farmacia Farmacia
Santa Maria delle Grazie
2,8 Km
Farmacia
2,8 Km
Bar Bar
Ely Rose cafè
1,9 Km
bar Sport
2,1 Km
La capanna verde
2,7 Km
Bar don Bernini
2,9 Km
bar Le follie
3,0 Km
Ristoranti Ristoranti
Lago nel Paradiso
2,6 Km
Mostra tutto

Caratteristiche

Rif.:
61140641
Piano:
2 di 2 (ultimo Piano)
Terrazzi:
1
Camere da letto:
3
Arredamento:
Parziale
Condizionamento:
Autonomo
Mostra tutto
Prezzo Prezzo
€ 135.000
Rata mutuo Rata mutuo
€ 636 / mese
Spese annue Spese annue
€ 500
Proponi il tuo prezzoProponi il tuo prezzo

Classe Energetica

F
F
F
F
F
F
F
F
F
EP globale non rinnovabile:
118.00 kW h/m² anno
EP globale rinnovabile:
118.00 kW h/m² anno
EP invernale del fabbricato:
EP estiva del fabbricato:
Anno di costruzione:
2004
Riscaldamento:
Autonomo
Tipo impianto:
A radiatori
Tipo alimentazione:
Metano

Ti interessa visionare l'immobile?

Fissa un appuntamento  Fissa un appuntamento

Richiedi informazioni

Clicca su Leggi per aprire l'informativa
* Questi campi sono obbligatori

Calcola il tuo mutuo

Semplice e senza impegno
Anticipo

( % )
Mutuo

( % )

pochi semplici passi

inserisci i tuoi dati
Questionario completato
Grazie per aver richiesto un appuntamento senza impegno con un nostro Consulente del Credito e Assicurativo.

Hai inserito correttamente tutti i dati necessari e a breve riceverai una e-mail con un link da convalidare per inviare i tuoi dati.
Affiliato
Cales Srl
Viale Martiri della Libertà , 20 43058 Sorbolo (PR)

Il nostro staff


  • Ida Cipro
    Affiliata

  • Martina Mortellaro
    Collaboratrice

  • Assunta Rita Petrosillo
    Collaboratrice
Viale Martiri della Libertà , 20 43058 Sorbolo (PR)
Zona: Sorbolo-Mezzani-Bogolese-Lentigione-Sorbolo a Leva
Mostra su mappa
Orari: DAL LUNEDI' AL VENERDI' 8.30/13.00 15.00/20.00 SABATO 8.30/16.30 ORARIO CONTINUATO
Affiliato
Cales Srl
Viale Martiri della Libertà , 20 43058 Sorbolo (PR)

2026 Tecnocasa Franchising S.p.A. - P. IVA 08365160152 - Via Monte Bianco 60/A 20089 Rozzano (MI). Ogni agenzia ha un proprio titolare ed è autonoma. Privacy policy | Policy utilizzo | Cookie policy